Tin môi trường

Điện thoại rơi xuống bồn cầu thì chúng ta phải làm sao Điện thoại rơi xuống bồn cầu thì chúng ta phải làm sao

Chắc hẳn việc điện thoại rơi xuống bồn cầu xảy ra không thường xuyên nhưng không phải vì thế mà chúng ta không kể đến, chính là vì sự bất cẩn của chúng ta trong quá trình sử dụng điện thoại trong...

Vòi nước lavabo chảy yếu thì phương pháp xử lý như thế nào Vòi nước lavabo chảy yếu thì phương pháp xử lý như thế nào

Vòi nước lavabo chảy yếu đang là vấn đề nan giải đối với các hộ gia đình, nhưng bạn đừng lo hiện tại từ khóa khắc phục lavabo chảy yếu đang được tìm kiếm rất nhiều. Để bạn không mất thời gian tìm...

Phễu thoát sàn chống mùi hôi được hộ gia đình tin dùng Phễu thoát sàn chống mùi hôi được hộ gia đình tin dùng

Phễu thoát sàn chống mùi hôi là từ khóa được tìm kiếm nhiều nhất đối với những hộ gia đình đang có ý định xây nhà hoặc là muốn cải thiện lại nhà vệ sinh, thì bài viết này sẽ giúp bạn có cái nhìn...

Phễu thoát sàn chống trào ngược được sử dụng phổ biến Phễu thoát sàn chống trào ngược được sử dụng phổ biến

Phễu thoát sàn chống trào ngược là từ khóa đang được nhiều khách hàng quan tâm đến bởi lẻ tình cần thiết của nó. Bài viết dưới đây chúng tôi sẽ liệt kê những phễu thoát sàn mà được sử dụng phổ biến...

Bể phốt nên xây tường bao nhiêu là đạt tiêu chuẩn Bể phốt nên xây tường bao nhiêu là đạt tiêu chuẩn

Bể phốt nên xây tường bao nhiêu đang là từ khóa mà các hộ gia đình đang trong giai đoạn xây dựng nhà mới, để tiết kiệm thời gian Hưng Phát đã có một bài viết về cách xây dựng bể phốt giúp cung cấp...

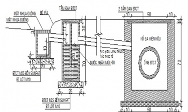
Bản vẽ chi tiết hố ga thu nước mưa và cách hoạt động của hố ga Bản vẽ chi tiết hố ga thu nước mưa và cách hoạt động của hố ga

Bản vẽ chi tiết hố ga thu nước mưa giúp cho nhiều khách hàng có thể tham khảo qua cấu trúc của hố ga để từ đó có thể sử dụng hố ga một cách tốt hơn và tránh được các tình trạng nghẹt hố ga không...

Những cách khử mùi hôi trong nhà tự nhiên cho từng ngóc ngách dễ Những cách khử mùi hôi trong nhà tự nhiên cho từng ngóc ngách dễ

Một căn phòng hay ngôi nhà có mùi không chỉ ảnh hưởng đến thẩm mỹ và sự đánh giá của những vị khách đến nhà bạn mà còn ảnh hưởng đến tâm trạng của bạn. Chính vì vậy, hôm nay chúng ta sẽ cùng nhau...

Cách xử lý ống nước bị vỡ dễ thực hiện, hiệu quả cao Cách xử lý ống nước bị vỡ dễ thực hiện, hiệu quả cao

Làm thế nào để xử lý hiệu quả đường ống nước bị vỡ? Việc ống bị vỡ có dễ sửa chữa không? Tại sao đường ống nước bị hỏng? Chúng tôi rất vui lòng giải đáp mọi thắc mắc của bạn và hướng dẫn bạn từ A...

Cách xử lý nước thải sinh hoạt tại nhà thông dụng và dễ thực hiện Cách xử lý nước thải sinh hoạt tại nhà thông dụng và dễ thực hiện

Xử lý nước thải sinh hoạt là một trong những công việc quan trọng của cuộc sống hiện đại. Bởi nếu không được xử lý kịp thời, môi trường của chúng ta sẽ trở nên ô nhiễm nghiêm trọng, ảnh hưởng đến...

Cách xử lý nước ao bị ô nhiễm an toàn và hiệu quả nhất Cách xử lý nước ao bị ô nhiễm an toàn và hiệu quả nhất

Nước ao thối không chỉ ảnh hưởng đến môi trường sống xung quanh mà còn ảnh hưởng đến chất lượng nguồn nước lâu dài. Vậy đâu là nguyên nhân của tình trạng này? Làm thế nào để khắc phục nó hoàn toàn?...

Cách làm thơm nhà vệ sinh hiệu quả, an toàn sức khỏe Cách làm thơm nhà vệ sinh hiệu quả, an toàn sức khỏe

Vệ sinh phòng tắm là việc cần làm, nếu không vi khuẩn sẽ sinh sôi và tích tụ dễ dàng. Với một số cách làm thơm nhà vệ sinh dưới đây, bạn sẽ luôn giữ được phòng tắm sạch sẽ mà không tốn thời gian và...

Cách làm tan mỡ trong ống thoát nước với các thao tác đơn giản Cách làm tan mỡ trong ống thoát nước với các thao tác đơn giản

Thời gian lâu ngày dầu mỡ sẽ tích tụ gây ra tình trạng tắc nghẽn đường ống thoát nước khiến nước thoát chậm và có thể không thoát được nước thải. Chính vì thế bài viết sau đây chúng tôi xin đề cập...

Yêu cầu tư vấn

GỌI NGAY: 02866.599.805 - 0933.450.825

Timeout !Get new captcha